유찰 4회

올유레스틴뷰

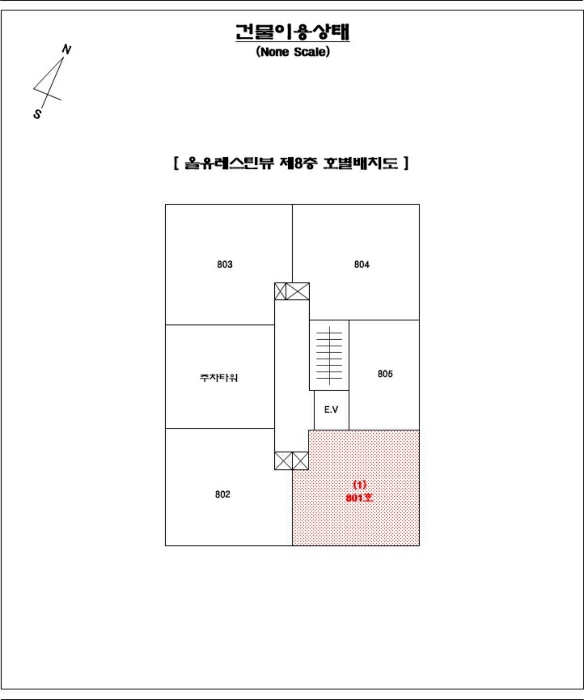
부산광역시 사상구 사상로202번길 60 (괘법동,올유레스틴뷰) 801호호 · 38㎡ · 8층
A
81점
입지점수
감정가
1.5억
최저입찰가
36,015,000원
KB 시세
KB 할인율
입찰일 2026년 06월 17일 (D-17)
부산서부지원

물건기본정보

유찰4회
사건번호 2024타경110112 (부동산강제경매) 물건종류 아파트
감정평가액 150,000,000 최저매각가격
(매수신청보증금)
36,015,000원
(360만원)
입찰방법 기일입찰 매각기일 2026.06.17 10:00 제101호 경매법정 (D-17)
물건비고 현칭 및 건물외벽 '레스틴 뷰 2차' 로 되어 있음
소재지
[목록1] (집합건물) 부산광역시 사상구 사상로202번길 60, 8층801호 (괘법동,올유레스틴뷰) — 올유레스틴뷰 8층801호
담당 부산지방법원 부산서부지원 | 경매1계 사건접수 2024.09.23
경매개시일 2024.09.24 배당요구종기 2024.12.23
청구금액 1억 5,000만원 상태 진행 (유찰 4회)
전용면적 37.82㎡ 층수 8층
건물구조 철근콘크리트구조 슬래브지붕 15층 공동주택 준공연도 -
토지면적 37.82㎡ 대지지분 37.82 / 2504.7
최선순위설정 2024. 9. 24. 경매개시결정
물건 사진
B000414202401301101121.jpg
1 / 14
SISETUM 가격 분석
KB시세
시세 데이터 없음
실거래가
140,000,000원
2026.03 기준
감정가
150,000,000원
최저입찰가
36,015,000원
기일내역
기일기일종류기일장소최저매각가격결과
2026.01.28(10:00) 매각기일 제101호 경매법정 150,000,000원 유찰
2026.03.04(10:00) 매각기일 제101호 경매법정 105,000,000원 유찰
2026.04.08(10:00) 매각기일 제101호 경매법정 73,500,000원 유찰
2026.05.13(10:00) 매각기일 제101호 경매법정 51,450,000원 유찰
2026.06.17(10:00) 매각기일 제101호 경매법정 36,015,000원 -
2026.06.24(13:40) 매각결정기일 제101호 경매법정 - -
목록내역
목록번호 목록구분 상세내역
1 집합건물
1동의 건물 표시 부산광역시 사상구 괘법동 541-3 올유레스틴뷰 [도로명 주소] 부산광역시 사상구 사상로202번길 60 (괘법동,올유레스틴뷰) [1동] 철근콘크리트구조 슬래브지붕 15층 공동주택 지하1층 263.514㎡ 1층 116.195㎡ 2층 241.486㎡ 3층 241.486㎡ 4층 241.486㎡ 5층 241.486㎡ 6층 241.486㎡ 7층 241.486㎡ 8층 241.486㎡ 9층 241.486㎡ 10층 241.486㎡ 11층 231.406㎡ 12층 231.406㎡ 13층 231.406㎡ 14층 231.406㎡ 15층 231.406㎡ [전유] 철근콘크리트구조 37.8214㎡ 전유부분의 건물의 표시 건물의 번호 : 8층801호 구  조 : 철근콘크리트구조 슬래브지붕 15층 공동주택 면  적 : 37.82㎡ 대지권의 목적인 토지의 표시 [전유] 부산광역시사상구괘법동541-3 지목:대 면적:477㎡ 지분:37.8214/2504.6815 대지권의 종류 : 소유권 대지권의 비율 : 2504.7 분의 37.82
경매 진행 타임라인
1차 경매 150,000,000원
2026.01.28
유찰
2차 경매 105,000,000원
2026.03.04
유찰
3차 경매 73,500,000원
2026.04.08
유찰
4차 경매 51,450,000원
2026.05.13
유찰
5차 경매 36,015,000원
2026.06.17
진행중
현재 진행중
현황조사서
사건번호 2024타경110112 조사일시 2024년10월10일17시00분 2024년10월19일11시20분
부동산의 점유관계
소재지 부산광역시 사상구 사상로202번길 60, 8층801호 (괘법동,올유레스틴뷰)
점유관계 미상
상세내용 ① 폐문으로 거주자 등을 만날 수 없어, 점유 및 임대차 관계 등은 알 수 없었음. ② 본건 부동산 전입세대확인서 및 외국인체류확인서 교부받은 바, 전입세대 없었음
부동산의 현황
건물 외벽 ` 레스틴 뷰 2차`로 되어 있음
부동산표시목록
번호 소재지 용도/구조/면적 비고
1 부산광역시 사상구 사상로202번길 60 (괘법동,올유레스틴뷰)
8층801호
(부산광역시 사상구 괘법동 541-3,올유레스틴뷰)
1동의 건물 표시 부산광역시 사상구 괘법동 541-3 올유레스틴뷰 [도로명 주소] 부산광역시 사상구 사상로202번길 60 (괘법동,올유레스틴뷰) [1동] 철근콘크리트구조 슬래브지붕 15층 공동주택 지하1층 263.514㎡ 1층 116.195㎡ 2층 241.486㎡ 3층 241.486㎡ 4층 241.486㎡ 5층 241.486㎡ 6층 241.486㎡ 7층 241.486㎡ 8층 241.486㎡ 9층 241.486㎡ 10층 241.486㎡ 11층 231.406㎡ 12층 231.406㎡ 13층 231.406㎡ 14층 231.406㎡ 15층 231.406㎡ [전유] 철근콘크리트구조 37.8214㎡ 전유부분의 건물의 표시 건물의 번호 : 8층801호 구  조 : 철근콘크리트구조 슬래브지붕 15층 공동주택 면  적 : 37.82㎡ 대지권의 목적인 토지의 표시 [전유] 부산광역시사상구괘법동541-3 지목:대 면적:477㎡ 지분:37.8214/2504.6815 대지권의 종류 : 소유권 대지권의 비율 : 2504.7 분의 37.82
감정평가서
감정평가법인김영일
감정기준일2024년 10월 08일 감정가-
감정평가서 PDF 보기
감정평가 요점
감정평가 요점 — 위치/환경 (#1)
본건은 부산광역시 사상구 괘법동 소재 "부산서부사상 버스터미널" 동측 인근에 위치하고, 주위는 중소규모 공동주택, 단독주택, 업무시설, 각종 근린생활시설 등으로 형성되어 있음.
감정평가 요점 — 건물의 구조 (#2)
본건까지 차량접근 가능하고, 인근에 버스정류장 및 부산지하철 2호선 사상역 및 부산김해 경전철 사상역이 소재함.
감정평가 요점 — 건물의 구조 (#3)
철근콘크리트구조 슬래브지붕 지하1층 지상15층 건내 제8층 제801호로서, 외벽 : 화강석붙임 및 몰탈위페인팅 등 마감, 창호 : 샷시이중창 구조임.
감정평가 요점 — 기타사항 (#4)
공동주택(도시형생활주택(원룸형))으로 이용중임.
감정평가 요점 — 설비내역 (#5)
위생설비, 급배수설비, 승강기설비, 주차타워설비, 소화전설비, 화재경보 및 탐지설비, 도시가스에 의한 개별난방설비 등이 되어 있음.
감정평가 요점 — 토지이용계획 및 제한상태 (#6)
완경사지내 대체로 평탄하게 조성한 세장형 토지로서, 공동주택 건부지로 이용중임.
감정평가 요점 — 설비내역 (#7)
본건 북서측으로 노폭 약 6미터 내외의 도로와 접함.
감정평가 요점 — 토지이용계획 및 제한상태 (#8)
일반상업지역, 방화지구, 가축사육제한구역<가축분뇨의 관리 및 이용에 관한 법률>, 가로구 역별 최고높이 제한지역(2024-06-12)(기준높이 115m, 최고높이 150m)<건축법>, 비행안전제6 구역(전술)(6구역)<군사기지 및 군사시설 보호법>임.
감정평가 요점 — 공부와의 차이 (#9)
없음.
감정평가 요점 — 기타참고사항(임대관례 및 기타) (#10)
1)임대관계 : 미상임. 2)기 타 : 없 음.
건물 상세정보
사용승인
2018년
8년차
구조
철근콘크리트구조
연면적
3710㎡
에너지등급
0
층수
지상15/지하1
세대수
61
건폐/용적률
78.65% / 711.88%
공시가격 비교
기준연도 2025년
공시가격 95,100,000원
가격 비교
감정가 150,000,000원
공시가격 95,100,000원
최저입찰가 36,015,000원
토지정보
용도지역 · 지구
일반상업지역 중로2류(폭 15m~20m)
규제사항
비행안전제6구역(전술) 가축사육제한구역 방화지구 가로구역별 최고높이 제한지역 정비구역 지구단위계획구역
개별공시지가
2025년 1,778,000원/㎡ (일반)
학군정보 1개교
__none__ 1
__none__
주변 편의시설 반경 500m · 5개
기타 편의시설 5
서희스타힐스공인중개사사무소
부산광역시 사상구 괘법동 525-68
척바로마취통증의학과의원
부산광역시 사상구 괘법동 524-10
세아뜨
부산광역시 사상구 괘법동 817-6
나비산부인과의원
부산광역시 사상구 괘법동 271-1
르네상스뷔페크로네
부산광역시 사상구 괘법동 559-6
부산광역시 아파트 매매지수
104.3 2026.01 기준 (2017.11=100)
102
102
102
101
102
102
102
102
103
103
104
104
25.02
25.03
25.04
25.05
25.06
25.07
25.08
25.09
25.10
25.11
25.12
26.01
출처: 한국부동산원
입지 종합 평가
A
81 점 / 100
교통
100
사상역 240m · 사상 환승역 · 버스정류장 300m내 9개
학군
90
초 괘법초등학교 459m · 중 덕포여자중학교 705m · 고 사상고등학교 556m · 1km내 8개교
생활환경
45
편의시설 5개 · 창날공원 164m
건물
75
준신축 8년차 · 61세대
안전
70
부산 사상구 범죄 7,011건 (보통)
개발환경
95
정비구역 지정 · 지구단위계획
사건상세조회
사건번호 2024타경110112 사건명 부동산강제경매
접수일자 2024.09.23 개시결정일자 2024.09.24
담당계 부산지방법원 | 경매1계
전화: 051-812-1261 | 집행관사무소: 051-206-1122 (FAX:051-206-1124)
청구금액 1억 5,000만원 사건항고/정지 -
배당요구종기 2024.12.23 종국결과 미종국
기일기일종류기일장소최저매각가격
2026.01.28(10:00) 매각기일 제101호 경매법정 150,000,000원
2026.03.04(10:00) 매각기일 제101호 경매법정 105,000,000원
2026.04.08(10:00) 매각기일 제101호 경매법정 73,500,000원
2026.05.13(10:00) 매각기일 제101호 경매법정 51,450,000원
2026.06.17(10:00) 매각기일 제101호 경매법정 36,015,000원
2026.06.24(13:40) 매각결정기일 제101호 경매법정 -
날짜내용결과
2026.05.27 채무자겸소유자 이OO 매각기일 및 매각결정기일통지서 발송
2026.05.27 임차권자 주OOOOOOO(OOO OOO) 매각기일 및 매각결정기일통지서 발송
2026.05.27 임차권자 박OO 매각기일 및 매각결정기일통지서 발송
2026.05.27 교부권자 부OOOO OOO 매각기일 및 매각결정기일통지서 발송
2026.05.27 임차인 주OOOOOOO(OOO OOO) 매각기일 및 매각결정기일통지서 발송
2026.05.27 채권자대리인 노OO 매각기일 및 매각결정기일통지서 발송
2026.05.13 기타 구OO 기일입찰조서 제출
2026.04.08 기타 구OO 기일입찰조서 제출
2026.03.04 기타 구OO 기일입찰조서 제출
2026.01.28 기타 구OO 기일입찰조서 제출
2025.12.01 임차권자 주OOOOOOO(OOO OOO) 매각기일 및 매각결정기일통지서 발송 2025.12.02 송달간주
2025.12.01 임차권자 박OO 매각기일 및 매각결정기일통지서 발송 2025.12.02 송달간주
2025.12.01 교부권자 부OOOO OOO 매각기일 및 매각결정기일통지서 발송 2025.12.02 송달간주
2025.12.01 임차인 주OOOOOOO(OOO OOO) 매각기일 및 매각결정기일통지서 발송 2025.12.02 송달간주
2025.12.01 채권자대리인 노OO 매각기일 및 매각결정기일통지서 발송 2025.12.02 도달
2025.12.01 채무자겸소유자 이OO 매각기일 및 매각결정기일통지서 발송 2025.12.04 도달
2025.11.27 채권자 소송대리인 노OO 보정서 제출
2025.11.07 채권자대리인 노OO 보정명령등본 발송 2025.11.12 도달
2025.09.18 채권자대리인 노OO 보정명령등본 발송 2025.09.23 도달
2024.12.11 교부권자 부OOOO OOO 미체납교부청구서 제출
유의사항
  • 매각물건명세서는 매각기일(입찰기간) 1주 전부터, 현황조사서와 감정평가서는 2주 전부터 매각기일(입찰기간)까지 법원에서 조회가 가능합니다.
  • 본 서비스의 정보는 법원경매정보를 기반으로 재가공한 것이며, 실제 매각물건의 정보와 다를 수 있습니다. 입찰 전 반드시 법원에 비치된 물건명세서, 현황조사서, 감정평가서를 직접 확인하시기 바랍니다.
  • 매수에 영향을 줄 수 있는 중요한 권리관계의 변동사항이 있을 수 있으므로, 입찰 참가 전 등기사항전부증명서를 반드시 확인하시기 바랍니다.
  • 본 서비스에서 제공하는 KB 시세, 할인율, 낙찰 예상가 등 분석 데이터는 참고용이며, 이를 근거로 한 투자 판단에 대해 본 서비스는 책임을 지지 않습니다.