급매
유찰 4회
D-1
충주시티자이
충청북도 충주시 원앙4길 51 (충주시티자이) · 116동동 105호호 · 60㎡ · 1층
C
64점
입지점수
입찰일
2026년 06월 01일 (D-1)
충주지원
물건기본정보
급매
유찰4회
D-1
| 사건번호 | 2024타경35605 (부동산강제경매) | 물건종류 | 아파트 |
|---|---|---|---|
| 감정평가액 | 196,000,000원 | 최저매각가격 (매수신청보증금) |
80,282,000원
(802만원) |
| 입찰방법 | 기일입찰 | 매각기일 | 2026.06.01 10:00 제3호 법정 (D-1) |
| 소재지 |
[목록1]
(집합건물)
충청북도 충주시 중앙탑면 원앙4길 51, 116동 1층105호 (충주시티자이)
— 충주시티자이
116동 1층105호
|
||
| 담당 | 청주지방법원 충주지원 | 경매2계 | 사건접수 | 2024.11.06 |
| 경매개시일 | 2024.11.07 | 배당요구종기 | 2025.02.11 |
| 청구금액 | 2억 1,336만원 | 상태 | 진행 (유찰 4회) |
| 전용면적 | 60.00㎡ | 층수 | 1층 |
| 건물구조 | 철근콘크리트구조 (철근)콘크리트지붕 17층 공동주택 | 준공연도 | - |
| 토지면적 | 48.88㎡ | 대지지분 | 48.88 / 88800.3 |
| 최선순위설정 | 2023.12.27. 가압류 | ||
물건 사진
1 / 11
×
‹
›
SISETUM 가격 분석
KB시세
185,000,000원
일반거래가 · 2026.03 기준
상한 192,500,000원
일반 185,000,000원
하한 175,000,000원
실거래가
171,000,000원
2026.04 기준
감정가
196,000,000원
최저입찰가
80,282,000원
최저가 기준 KB 할인율
-32.2%
실거래 대비 -53.1%
기일내역
| 기일 | 기일종류 | 기일장소 | 최저매각가격 | 결과 |
|---|---|---|---|---|
| 2025.12.22(10:00) | 매각기일 | 제3호 법정 | 196,000,000원 | 유찰 |
| 2026.01.26(10:00) | 매각기일 | 제3호 법정 | 156,800,000원 | 유찰 |
| 2026.03.16(10:00) | 매각기일 | 제3호 법정 | 125,440,000원 | 유찰 |
| 2026.04.20(10:00) | 매각기일 | 제3호 법정 | 100,352,000원 | 유찰 |
| 2026.06.01(10:00) | 매각기일 | 제3호 법정 | 80,282,000원 | - |
| 2026.06.08(14:00) | 매각결정기일 | 제3호 법정 | - | - |
목록내역
| 목록번호 | 목록구분 | 상세내역 |
|---|---|---|
| 1 | 집합건물 |
1동의 건물 표시
충청북도 충주시 중앙탑면 721
충주시티자이
[도로명 주소]
충청북도 충주시 원앙4길 51 (충주시티자이)
[1동] 철근콘크리트구조 (철근)콘크리트지붕 17층 공동주택
지3층 220.2552㎡
1층 387.1252㎡
2층 301.3846㎡
3층 447.2498㎡
4층 447.2498㎡
5층 447.2498㎡
6층 447.2498㎡
7층 447.2498㎡
8층 447.2498㎡
9층 447.2498㎡
10층 447.2498㎡
11층 447.2498㎡
12층 447.2498㎡
13층 447.2498㎡
14층 447.2498㎡
15층 447.2498㎡
16층 251.1446㎡
17층 251.1446㎡
[전유] 철근콘크리트구조 59.9959㎡
전유부분의 건물의 표시
건물의 번호 : 116동 1층105호
구 조 : 철근콘크리트구조 (철근)콘크리트지붕 17층 공동주택
면 적 : 60.00㎡
대지권의 목적인 토지의 표시
[전유] 충청북도충주시중앙탑면용전리721 지목:대 면적:88800.3㎡ 지분:48.8793/88800.3
대지권의 종류 : 소유권
대지권의 비율 : 88800.3 분의 48.88
|
경매 진행 타임라인
1차 경매
196,000,000원
2025.12.22
유찰
2차 경매
156,800,000원
2026.01.26
유찰
3차 경매
125,440,000원
2026.03.16
유찰
4차 경매
100,352,000원
2026.04.20
유찰
5차 경매
80,282,000원
2026.06.01
진행중
현재 진행중
현황조사서
| 사건번호 | 2024타경35605 | 조사일시 | 2024년11월20일 |
|---|
부동산의 점유관계
임대차관계 조사서
| 번호 | 소재지 | 임차인 | 보증금 | 월세 | 전입일 | 확정일 |
|---|---|---|---|---|---|---|
| 1 | 충청북도 충주시 중앙탑면 원앙4길 51, 116동 1층105호 (충주시티자이) | - | - | - | - | - |
부동산표시목록
| 번호 | 소재지 | 용도/구조/면적 | 비고 |
|---|---|---|---|
| 1 |
충청북도 충주시 원앙4길 51 (충주시티자이)
116동 1층105호 (충청북도 충주시 중앙탑면 721,충주시티자이) |
1동의 건물 표시
충청북도 충주시 중앙탑면 721
충주시티자이
[도로명 주소]
충청북도 충주시 원앙4길 51 (충주시티자이)
[1동] 철근콘크리트구조 (철근)콘크리트지붕 17층 공동주택
지3층 220.2552㎡
1층 387.1252㎡
2층 301.3846㎡
3층 447.2498㎡
4층 447.2498㎡
5층 447.2498㎡
6층 447.2498㎡
7층 447.2498㎡
8층 447.2498㎡
9층 447.2498㎡
10층 447.2498㎡
11층 447.2498㎡
12층 447.2498㎡
13층 447.2498㎡
14층 447.2498㎡
15층 447.2498㎡
16층 251.1446㎡
17층 251.1446㎡
[전유] 철근콘크리트구조 59.9959㎡
전유부분의 건물의 표시
건물의 번호 : 116동 1층105호
구 조 : 철근콘크리트구조 (철근)콘크리트지붕 17층 공동주택
면 적 : 60.00㎡
대지권의 목적인 토지의 표시
[전유] 충청북도충주시중앙탑면용전리721 지목:대 면적:88800.3㎡ 지분:48.8793/88800.3
대지권의 종류 : 소유권
대지권의 비율 : 88800.3 분의 48.88
|
— |
감정평가서
| 감정평가법인 | 신수병 | ||
|---|---|---|---|
| 감정기준일 | 2024년 11월 18일 | 감정가 | - |
감정평가 요점
감정평가 요점 — 위치/환경 (#1)
본건은 충청북도 충주시 중앙탑면 용전리 소재 "충주중앙탑초등학교" 북측 인근에 위치하며, 주위는 아파트단지, 단독주택 및 근린생활시설 등이 혼재하는 등 제반 주위환경은 보통임.
감정평가 요점 — 교통 (#2)
본건까지 제차량의 진출입이 자유로우며, 인근에 간선도로가 통과하는 등 제반 교통사정은 보통임.
감정평가 요점 — 00083015 (#3)
철근콘크리트구조(철근)콘크리트지붕 지하3층 지상17층 건물 내 제1층 105호로서
(사용승인일:2017.11.29.)
외벽: 몰탈위 페인팅 마감
내벽: 벽지도배 및 일부 타일붙임 등
창호: 샷시창호임.
감정평가 요점 — 건물현황 (#4)
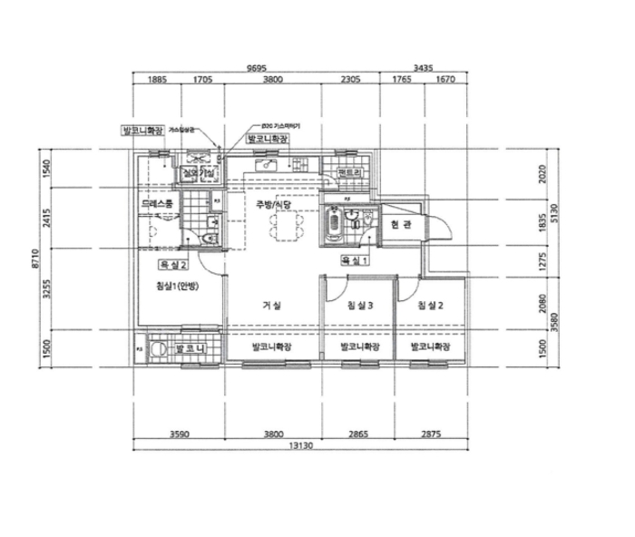
아파트(방3, 거실, 주방/식당, 욕실2)로 이용 중임.
감정평가 요점 — 00083017 (#5)
위생 및 급배수설비, 난방설비, 소화전설비, 승강기설비, 주차장설비 되어있음.
감정평가 요점 — 기타사항 (#6)
정방형의 평탄한 토지로서 아파트 건부지로 이용 중임.
감정평가 요점 — 토지현황 (#7)
남측으로 노폭 약 20-25m 내외의 포장도로와 접함.
감정평가 요점 — 00083011 (#8)
도시지역,제3종일반주거지역(2013-01-15),지구단위계획구역(2013-01-24),중로1류(폭 20m-25m)(2020-03-27)(중로1-중앙)(접합),중로2류(폭 15m-20m)(2020-03-27)(중로2-중앙26)(접합),가축사육제한구역(모든가축사육제한지역)<가축분뇨의 관리 및 이용에 관한 법률>,상대보호구역(2019-09-20)(서충주꿈의유치원)<교육환경 보호에 관한 법률>,상대보호구역(2019-09-20)(중앙탑중학교)<교육환경 보호에 관한 법률>,상대보호구역(2019-09-20)(충주중앙탑초등학교)<교육환경 보호에 관한 법률>,절대보호구역(2019-09-20)(중앙탑중학교)<교육환경 보호에 관한 법률>,절대보호구역(2019-09-20)(충주중앙탑초등학교)<교육환경 보호에 관한 법률),기업도시개발구역(2013-01-15)(충주지식기반형기업도시)<기업도시개발 특별법>
감정평가 요점 — 00083014 (#9)
해당사항 없음.
감정평가 요점 — 00083026 (#10)
임대관계는 미상임.
감정평가 요점 — 건물의 구조 (#2)
본건까지 제차량의 진출입이 자유로우며, 인근에 간선도로가 통과하는 등 제반 교통사정은 보통임.
감정평가 요점 — 건물의 구조 (#3)
철근콘크리트구조(철근)콘크리트지붕 지하3층 지상17층 건물 내 제1층 105호로서
(사용승인일:2017.11.29.)
외벽: 몰탈위 페인팅 마감
내벽: 벽지도배 및 일부 타일붙임 등
창호: 샷시창호임.
감정평가 요점 — 기타사항 (#4)
아파트(방3, 거실, 주방/식당, 욕실2)로 이용 중임.
감정평가 요점 — 설비내역 (#5)
위생 및 급배수설비, 난방설비, 소화전설비, 승강기설비, 주차장설비 되어있음.
감정평가 요점 — 토지이용계획 및 제한상태 (#6)
정방형의 평탄한 토지로서 아파트 건부지로 이용 중임.
감정평가 요점 — 설비내역 (#7)
남측으로 노폭 약 20-25m 내외의 포장도로와 접함.
감정평가 요점 — 토지이용계획 및 제한상태 (#8)
도시지역,제3종일반주거지역(2013-01-15),지구단위계획구역(2013-01-24),중로1류(폭 20m-25m)(2020-03-27)(중로1-중앙)(접합),중로2류(폭 15m-20m)(2020-03-27)(중로2-중앙26)(접합),가축사육제한구역(모든가축사육제한지역)<가축분뇨의 관리 및 이용에 관한 법률>,상대보호구역(2019-09-20)(서충주꿈의유치원)<교육환경 보호에 관한 법률>,상대보호구역(2019-09-20)(중앙탑중학교)<교육환경 보호에 관한 법률>,상대보호구역(2019-09-20)(충주중앙탑초등학교)<교육환경 보호에 관한 법률>,절대보호구역(2019-09-20)(중앙탑중학교)<교육환경 보호에 관한 법률>,절대보호구역(2019-09-20)(충주중앙탑초등학교)<교육환경 보호에 관한 법률),기업도시개발구역(2013-01-15)(충주지식기반형기업도시)<기업도시개발 특별법>
감정평가 요점 — 공부와의 차이 (#9)
해당사항 없음.
감정평가 요점 — 기타참고사항(임대관례 및 기타) (#10)
임대관계는 미상임.
건물 상세정보
사용승인
2017년
9년차
구조
철근콘크리트구조
연면적
7226㎡
에너지등급
70.45
층수
지상17/지하3
세대수
77
공시가격 비교
| 기준연도 | 2025년 |
|---|---|
| 공시가격 | 110,000,000원 |
| 동/호 | 110동 / 301 |
가격 비교
토지정보
용도지역 · 지구
보전산지
임업용산지
준보전산지
자연녹지지역
제3종일반주거지역
도시지역
+3개
규제사항
기업도시개발구역
경관녹지
지구단위계획구역
가축사육제한구역
절대보호구역
상대보호구역
개별공시지가
| 2025년 | 377,200원/㎡ (일반) |
|---|
학군정보 1개교
__none__ 1
__none__
주변 편의시설 반경 500m · 5개
기타 편의시설 5
본죽&비빔밥cafe서충주점
충청북도 충주시 중앙탑면 용전리 665
강북디엔씨
충청북도 충주시 중앙탑면 용전리 665
투썸플레이스서충주
충청북도 충주시 중앙탑면 용전리 665
빅히트PC엔터
충청북도 충주시 중앙탑면 용전리 665
3팝피씨
충청북도 충주시 중앙탑면 용전리 665
입지 종합 평가
C
64 점 / 100
교통
30
지하철역 2km 초과 · 버스정류장 300m내 3개
학군
85
초 충주중앙탑초등학교 164m · 중 중앙탑중학교 229m · 고 중앙탑고등학교 534m · 1km내 3개교
생활환경
45
편의시설 5개 · 어린이공원/3 175m
건물
85
준신축 9년차 · 77세대
안전
80
충청 충주시 범죄 5,613건 (안전)
개발환경
90
도시개발구역 · 지구단위계획
사건상세조회
| 사건번호 | 2024타경35605 | 사건명 | 부동산강제경매 |
|---|---|---|---|
| 접수일자 | 2024.11.06 | 개시결정일자 | 2024.11.07 |
| 담당계 |
청주지방법원
| 경매2계
전화: 043-841-9122 | 집행관사무소: 043-843-2011 |
||
| 청구금액 | 2억 1,336만원 | 사건항고/정지 | - |
| 배당요구종기 | 2025.02.11 | 종국결과 | 미종국 |
| 기일 | 기일종류 | 기일장소 | 최저매각가격 |
|---|---|---|---|
| 2025.12.22(10:00) | 매각기일 | 제3호 법정 | 196,000,000원 |
| 2026.01.26(10:00) | 매각기일 | 제3호 법정 | 156,800,000원 |
| 2026.03.16(10:00) | 매각기일 | 제3호 법정 | 125,440,000원 |
| 2026.04.20(10:00) | 매각기일 | 제3호 법정 | 100,352,000원 |
| 2026.06.01(10:00) | 매각기일 | 제3호 법정 | 80,282,000원 |
| 2026.06.08(14:00) | 매각결정기일 | 제3호 법정 | - |
| 날짜 | 내용 | 결과 |
|---|---|---|
| 2026.04.30 | 교부권자 수OOOO 매각기일 및 매각결정기일통지서 발송 | 2026.05.04 송달간주 |
| 2026.04.30 | 교부권자 충OO (OOO) 매각기일 및 매각결정기일통지서 발송 | 2026.05.04 송달간주 |
| 2026.04.30 | 교부권자 수OO 매각기일 및 매각결정기일통지서 발송 | 2026.05.04 송달간주 |
| 2026.04.30 | 배당요구권자 신OOOOO 매각기일 및 매각결정기일통지서 발송 | 2026.05.04 송달간주 |
| 2026.04.30 | 압류권자 광OO 매각기일 및 매각결정기일통지서 발송 | 2026.05.04 송달간주 |
| 2026.04.30 | 교부권자 남OO OOO 매각기일 및 매각결정기일통지서 발송 | 2026.05.04 송달간주 |
| 2026.04.30 | 압류권자 충OO (OOO) 매각기일 및 매각결정기일통지서 발송 | 2026.05.04 송달간주 |
| 2026.04.30 | 압류권자 국OOOOOOO 매각기일 및 매각결정기일통지서 발송 | 2026.05.04 송달간주 |
| 2026.04.30 | 채권자대리인 법OOO OO 매각기일 및 매각결정기일통지서 발송 | 2026.05.06 도달 |
| 2026.04.30 | 채무자겸소유자 이OO 매각기일 및 매각결정기일통지서 발송 | 2026.05.01 도달 |
| 2026.04.30 | 점유자 이OO 매각기일 및 매각결정기일통지서 발송 | 2026.05.04 송달간주 |
| 2026.04.30 | 교부권자 국OOOOOOO OOOOOO 매각기일 및 매각결정기일통지서 발송 | 2026.05.04 송달간주 |
| 2026.04.30 | 배당요구권자 신OOO OOOO 매각기일 및 매각결정기일통지서 발송 | 2026.05.04 송달간주 |
| 2026.04.30 | 임차권자 원OO 매각기일 및 매각결정기일통지서 발송 | 2026.05.04 송달간주 |
| 2026.04.20 | 기타 채OO 기일입찰조서 제출 | |
| 2026.03.16 | 기타 채OO 기일입찰조서 제출 | |
| 2026.01.26 | 기타 채OO 기일입찰조서 제출 | |
| 2025.12.22 | 기타 채OO 기일입찰조서 제출 | |
| 2025.11.21 | 압류권자 국OOOOOOO 매각기일 및 매각결정기일통지서 발송 | 2025.11.24 송달간주 |
| 2025.11.21 | 압류권자 충OO (OOO) 매각기일 및 매각결정기일통지서 발송 | 2025.11.24 송달간주 |
인근매각물건사례
유의사항
- 매각물건명세서는 매각기일(입찰기간) 1주 전부터, 현황조사서와 감정평가서는 2주 전부터 매각기일(입찰기간)까지 법원에서 조회가 가능합니다.
- 본 서비스의 정보는 법원경매정보를 기반으로 재가공한 것이며, 실제 매각물건의 정보와 다를 수 있습니다. 입찰 전 반드시 법원에 비치된 물건명세서, 현황조사서, 감정평가서를 직접 확인하시기 바랍니다.
- 매수에 영향을 줄 수 있는 중요한 권리관계의 변동사항이 있을 수 있으므로, 입찰 참가 전 등기사항전부증명서를 반드시 확인하시기 바랍니다.
- 본 서비스에서 제공하는 KB 시세, 할인율, 낙찰 예상가 등 분석 데이터는 참고용이며, 이를 근거로 한 투자 판단에 대해 본 서비스는 책임을 지지 않습니다.